Beskrivelse

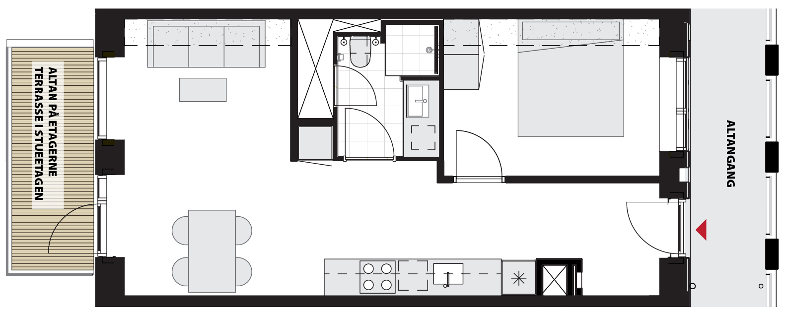
Det lyse, nordiske formsprog præger alle boliger i ERDAHUS. De klassiske egeparket giver rummene en naturlig atmosfære, mens vinduespartierne sikrer optimalt lysindfald. Ventilation og varmegenvinding sørger for et sundt og behageligt indeklima. Køkken- og badeelementer er i et stilrent design fra Invita, mens de hårde hvidevarer er fra Siemens. Badeværelset med gulvvarme og vedligeholdelsesvenlige klinker rummer toilet, håndvask og bruseniche samt vaskesøjle. De store altaner på 5-6 m² falder smukt i med byggeriet. Altanerne er belagt med gulve i skridsikkert hårdttræ. - En hyggelig cykeltur på 8 minutter så er du inde i Aarhus C 🚲 - Mindre husdyr er tilladt 🐶 - Mulighed for leje af p-plads i parkeringskælder. 🚙 OBS: Billeder og 3D scanninger kan være fra lignende prøvebolig.

8.450 kr. / md

Ubegrænset

25.350 kr.

8.450 kr.

Ja

Ja

Nej

Ja

Nej

Ja

Nej

Agent profile picture

Rasmus Bundgaard Nielsen

Udlejningskonsulent